横浜市港南区上永谷1丁目 新築戸建 全2棟 神奈川県横浜市港南区上永谷1丁目|4,380万円の新築一戸建て|分譲住宅や新築物件|ME不動産神奈川

定休日:水曜日 営業時間 9:00〜18:30

046-294-0866

会員登録
TOPページ >
物件検索 >
新築一戸建て
>
横浜市港南区
>
横浜市営地下鉄ブルーライン
>
横浜市港南区上永谷1丁目 新築戸建 全2棟

新築一戸建て

横浜市港南区上永谷1丁目 新築戸建 全2棟
お気に入り
価格 4,380万円 ローンシミュレーション
所在地 神奈川県横浜市港南区上永谷1丁目
この地域周辺の物件を見る
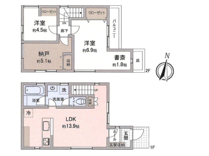
土地面積 81.06m² (24.52坪) 建物面積 72.04u
築年月 2026年4月築 間取り 2SLDK (-)
交通
横浜市営地下鉄ブルーライン 上永谷 徒歩9分
横浜市営地下鉄ブルーライン 港南中央 徒歩17分
ここがおすすめ

-


  • 現地外観写真 B号棟  ■暮らしを彩る充実した設備仕様が備わった住まい
  •  B号棟
  • 現地外観写真 B号棟  ■家族みんなが笑顔で過ごせる、安心感のある住まい
  • 現地外観写真 外観■新しい時代の息吹を感じる、心地よい環境
  • 現地外観写真 B号棟  ■まずは一度ご覧ください
  • 現地外観写真 B号棟  ■暮らしを豊かにする充実した仕様設備で快適に
  •  B号棟  ■自宅にカースペースがあると助かります
  • 玄関 B号棟  ■ シンプルで美しく、住まいの第一印象を彩る玄関です
  •  区画図
  • 玄関 B号棟  ■ 家族やゲストをやさしく迎える、心地よい空間
  • トイレ B号棟  ■毎日使う場所だからこそ、清潔感溢れる空間
  • 洗面台・洗面所 B号棟  ■清潔感があり、気持ちよく使えます
  • 浴室 B号棟  ■一日の疲れを癒す、心落ち着く空間です
  • キッチン B号棟  ■家族の絆を深める、温もりのあるキッチン
  • キッチン B号棟  ■作る楽しみと食べる幸せを届けるキッチン
  • キッチン B号棟  ■料理がもっと楽しくなる、快適なキッチン空間
  • リビング B号棟  ■くつろぎと笑顔が集まる、心温まるリビング
  • リビング B号棟  ■居心地のいい、理想のリビング
  • その他内観 B号棟  ■何気ない毎日を特別にする、癒しの空間
  • リビング B号棟  ■自然と会話が生まれる、心地よいひととき
  • その他内観 B号棟  ■どこになにを置くか楽しみな自分のお部屋
  • 子供部屋 B号棟  ■読書や趣味リモートワークなどさまざまな用途に対応できる柔軟さがあります
  • 寝室 B号棟  ■窓の配置や通気性の良い設計で部屋の空気がこもらず、常に新鮮な空気が流れます
  • その他内観 B号棟  ■機能的で使いやすいお部屋で毎日を快適に
  • バルコニー B号棟  ■ 朝のコーヒーや夜の星空を楽しむ、癒しの場所
  • その他内観 B号棟  ■心地よい雰囲気が漂う落ち着いた空間
  • その他内観 B号棟  ■自分だけのスペース どんなお部屋にするかとっても楽しみですね
  • その他内観 設備■手洗いや顔を洗う時も快適に使える便利なシャワー
  • その他内観 設備■鍵を取り出さずに便利に操作できて快適
  • その他内観 設備■温水洗浄で快適、清潔感が保たれるシャワートイレ
お問い合わせ、資料請求、見学のお申し込みはこちらから

電話をかける(携帯・PHS可)
046-294-0866
「ホームページを見た」とお伝え下さい。

お問い合わせ番号をお伝えください
RHS-980948460

内見予約
お問合せ

セールスポイント

特徴
  • フローリング
  • システムキッチン
  • コンロ三口
  • 床下収納
  • バルコニー
  • 都市ガス
セールスコメント
 


物件概要

採光面 - 構造/階数 木造/地上2階建
建ぺい率 60(%) 容積率 100(%)
駐車場 現況/引渡し 空家/即時
土地権利 所有権 私道負担面積 -

接道状況 接道: 北東 公道 道路幅: 5.8m 用途地域
第一種低層住居専用地域
セットバック なし 法令上の制限 第一種高度地区
地目 宅地 地勢
建築確認番号 第24KAK建確03425号 都市計画 市街化区域
取引態様 仲介
情報更新日 2026年05月26日 次回更新日 2026年06月09日
※各種情報と差異がある場合は現況優先となります

学区情報

小学校区 横浜市立相武山小学校
(神奈川県横浜市港南区)
この学区の他の物件を見る
中学校区 東永谷中学校
(神奈川県横浜市港南区)
この学区の他の物件を見る
※物件情報の学区情報について
当サイト物件情報に記載されております通学区域(学区)情報は、国土数値情報ダウンロードサービスが提供する小学校区データ【2016年度】及び中学校区データ【2016年度】を元に加工したものですので、記載情報が現在の学区域と異なる場合がございます。
国土数値情報ダウンロードサービスのWEBサイト上で記述通り、データは必ずしも正確とは言えません。また、通学区域(学区)は毎年見直しの対象となりますので、そちらを踏まえ学区情報は参考としてご活用下さい。
お問い合わせ、資料請求、見学のお申し込みはこちらから

電話をかける(携帯・PHS可)
046-294-0866
「ホームページを見た」とお伝え下さい。

お問い合わせ番号をお伝えください
RHS-980948460

内見予約
お問合せ

この物件でローンシミュレーションする

価格 万円
年利率
ボーナス払い 返済年数
頭金 直接入力する 万円

毎月のご返済額

ボーナス(×年2回)

物件価格

4,380万円
※返済金額はあくまでも目安です。

こちらの物件は複数区画の分譲地・他にも販売中のマンションがあります。

横浜市港南区上永谷1丁目
4280万円〜4380万円

電話をかける(携帯・PHS可)
046-294-0866
「ホームページを見た」とお伝え下さい。

お問い合わせ番号をお伝えください
RHS-980948460

内見予約
お問合せ

お問い合わせ

お問い合わせ内容
お問合せ内容必須
【備考欄】
詳細な見学ご希望時間、ご質問、ご希望条件などがございましたらお聞かせ下さい。
(2000文字以内)
お客様情報
お名前必須
連絡先必須 メールアドレス

※ご記入いただいたメールアドレス宛てに、お問合せ内容の確認メールをお送りいたします。
※Yahoo!メールなどのフリーメールをご利用の場合、迷惑メールフォルダに入る場合があります。
 迷惑メールのフォルダ・設定等をご確認下さい。
電話番号
FAX(任意)
※ご入力いただいたお客さまの個人情報は、「個人情報の取扱いについて」に基づき適正に取り扱います。必ずお読みになり、同意の上お問い合わせください。

お気軽にお問い合わせください

046-294-0866
物件番号 RHS-980948460
※「ホームページを見た」
とお伝え下さい。

お問い合わせ

人生最大のお買いものである住宅購入には、様々なお悩みや不安がつきものです
どんな些細なことでも構いませんので、まずはME不動産神奈川にお気軽にご相談ください。

© ME不動産神奈川 All rights reserved.