定休日:水曜日 営業時間 9:00〜18:30
046-294-0866
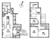
NEW 町田市金井1丁目 新築戸建 全1棟|町田市金井1丁目の新築一戸建て
埼玉県の市区町村を選択
東京都の市区町村を選択
神奈川県の市区町村を選択
飯能市の町名を選択
府中市の町名を選択
世田谷区の町名を選択
昭島市の町名を選択
あきる野市の町名を選択
稲城市の町名を選択
青梅市の町名を選択
清瀬市の町名を選択
国立市の町名を選択
小金井市の町名を選択
国分寺市の町名を選択
小平市の町名を選択
狛江市の町名を選択
立川市の町名を選択
多摩市の町名を選択
調布市の町名を選択
西多摩郡瑞穂町の町名を選択
西東京市の町名を選択
八王子市の町名を選択
羽村市の町名を選択
東久留米市の町名を選択
東村山市の町名を選択
東大和市の町名を選択
日野市の町名を選択
福生市の町名を選択
町田市の町名を選択
三鷹市の町名を選択
武蔵野市の町名を選択
武蔵村山市の町名を選択
厚木市の町名を選択
横浜市青葉区の町名を選択
藤沢市の町名を選択
三浦市の町名を選択
横浜市南区の町名を選択
横浜市戸塚区の町名を選択
川崎市宮前区の町名を選択
川崎市麻生区の町名を選択
平塚市の町名を選択
川崎市多摩区の町名を選択
海老名市の町名を選択
川崎市高津区の町名を選択
横浜市港南区の町名を選択
横浜市緑区の町名を選択
相模原市緑区の町名を選択
中郡大磯町の町名を選択
横浜市瀬谷区の町名を選択
座間市の町名を選択
茅ヶ崎市の町名を選択
綾瀬市の町名を選択
横浜市栄区の町名を選択
横浜市保土ケ谷区の町名を選択
横浜市泉区の町名を選択
横浜市金沢区の町名を選択
逗子市の町名を選択
足柄上郡開成町の町名を選択
秦野市の町名を選択
横浜市都筑区の町名を選択
相模原市中央区の町名を選択
高座郡寒川町の町名を選択
横浜市神奈川区の町名を選択
伊勢原市の町名を選択
川崎市幸区の町名を選択
鎌倉市の町名を選択
川崎市川崎区の町名を選択
横浜市鶴見区の町名を選択
足柄上郡大井町の町名を選択
足柄上郡松田町の町名を選択
足柄上郡山北町の町名を選択
小田原市の町名を選択
足柄下郡湯河原町の町名を選択
足柄上郡中井町の町名を選択
大和市の町名を選択
三浦郡葉山町の町名を選択
愛甲郡愛川町の町名を選択
横浜市磯子区の町名を選択
中郡二宮町の町名を選択
横須賀市の町名を選択
川崎市中原区の町名を選択
南足柄市の町名を選択
相模原市南区の町名を選択
横浜市旭区の町名を選択
横浜市港北区の町名を選択
小田急小田原線の駅を選択
JR東北本線の駅を選択
JR常磐線の駅を選択
JR八高線の駅を選択
湘南新宿ライン高海の駅を選択
湘南新宿ライン宇須の駅を選択
JR中央本線の駅を選択
JR東海道新幹線の駅を選択
JR東海道本線の駅を選択
JR御殿場線の駅を選択
JR武蔵野線の駅を選択
JR総武線の駅を選択
JR京浜東北・根岸線の駅を選択
JR埼京線の駅を選択
西武池袋線の駅を選択
西武新宿線の駅を選択
西武山口線の駅を選択
JR横須賀線の駅を選択
JR南武線の駅を選択
JR横浜線の駅を選択
JR中央線の駅を選択
JR青梅線の駅を選択
JR五日市線の駅を選択
西武拝島線の駅を選択
西武多摩湖線の駅を選択
西武国分寺線の駅を選択
西武西武園線の駅を選択
西武多摩川線の駅を選択
東京メトロ日比谷線の駅を選択
京王線の駅を選択
京王高尾線の駅を選択
京王相模原線の駅を選択
京王競馬場線の駅を選択
京王動物園線の駅を選択
京王井の頭線の駅を選択
小田急多摩線の駅を選択
東急東横線の駅を選択
東急田園都市線の駅を選択
東急目黒線の駅を選択
東急大井町線の駅を選択
東急世田谷線の駅を選択
京急本線の駅を選択
多摩都市モノレールの駅を選択
JR鶴見線の駅を選択
JR相模線の駅を選択
横浜市営地下鉄ブルーラインの駅を選択
箱根登山鉄道の駅を選択
金沢シーサイドラインの駅を選択
湘南モノレールの駅を選択
江ノ島電鉄の駅を選択
伊豆箱根鉄道大雄山線の駅を選択
小田急江ノ島線の駅を選択
東急こどもの国線の駅を選択
京急久里浜線の駅を選択
京急逗子線の駅を選択
京急大師線の駅を選択
相鉄いずみ野線の駅を選択
相鉄本線の駅を選択
みなとみらい線の駅を選択
横浜市営地下鉄グリーンラインの駅を選択
相鉄新横浜線の駅を選択
西武秩父線の駅を選択
西武狭山線の駅を選択
横浜市泉区の小学校を選択
横浜市緑区の小学校を選択
横浜市青葉区の小学校を選択
横浜市南区の小学校を選択
横浜市港北区の小学校を選択
横浜市金沢区の小学校を選択
横浜市西区の小学校を選択
横浜市戸塚区の小学校を選択
横浜市港南区の小学校を選択
横浜市保土ケ谷区の小学校を選択
横浜市瀬谷区の小学校を選択
横浜市旭区の小学校を選択
横浜市鶴見区の小学校を選択
世田谷区の小学校を選択
横浜市都筑区の小学校を選択
横浜市磯子区の小学校を選択
川崎市麻生区の小学校を選択
川崎市宮前区の小学校を選択
川崎市中原区の小学校を選択
川崎市川崎区の小学校を選択
川崎市幸区の小学校を選択
川崎市高津区の小学校を選択
川崎市多摩区の小学校を選択
相模原市緑区の小学校を選択
相模原市中央区の小学校を選択
相模原市南区の小学校を選択
横須賀市の小学校を選択
平塚市の小学校を選択
鎌倉市の小学校を選択
茅ヶ崎市の小学校を選択
逗子市の小学校を選択
秦野市の小学校を選択
厚木市の小学校を選択
大和市の小学校を選択
伊勢原市の小学校を選択
海老名市の小学校を選択
綾瀬市の小学校を選択
八王子市の小学校を選択
三浦郡葉山町の小学校を選択
高座郡寒川町の小学校を選択
中郡大磯町の小学校を選択
中郡二宮町の小学校を選択
足柄上郡中井町の小学校を選択
足柄上郡大井町の小学校を選択
足柄上郡松田町の小学校を選択
足柄上郡開成町の小学校を選択
足柄下郡湯河原町の小学校を選択
愛甲郡愛川町の小学校を選択
立川市の小学校を選択
三鷹市の小学校を選択
青梅市の小学校を選択
府中市の小学校を選択
昭島市の小学校を選択
調布市の小学校を選択
町田市の小学校を選択
小金井市の小学校を選択
小平市の小学校を選択
日野市の小学校を選択
東村山市の小学校を選択
国分寺市の小学校を選択
国立市の小学校を選択
福生市の小学校を選択
狛江市の小学校を選択
東大和市の小学校を選択
清瀬市の小学校を選択
東久留米市の小学校を選択
武蔵村山市の小学校を選択
多摩市の小学校を選択
羽村市の小学校を選択
あきる野市の小学校を選択
西多摩郡瑞穂町の小学校を選択
川崎市川崎区の中学校を選択
川崎市麻生区の中学校を選択
相模原市緑区の中学校を選択
横須賀市の中学校を選択
平塚市の中学校を選択
逗子市の中学校を選択
府中市の中学校を選択
中郡二宮町の中学校を選択
西多摩郡瑞穂町の中学校を選択
川崎市宮前区の中学校を選択
川崎市高津区の中学校を選択
川崎市幸区の中学校を選択
川崎市多摩区の中学校を選択
川崎市中原区の中学校を選択
相模原市南区の中学校を選択
相模原市中央区の中学校を選択
世田谷区の中学校を選択
鎌倉市の中学校を選択
茅ヶ崎市の中学校を選択
秦野市の中学校を選択
厚木市の中学校を選択
大和市の中学校を選択
伊勢原市の中学校を選択
海老名市の中学校を選択
綾瀬市の中学校を選択
三浦郡葉山町の中学校を選択
高座郡寒川町の中学校を選択
中郡大磯町の中学校を選択
足柄上郡中井町の中学校を選択
足柄上郡大井町の中学校を選択
足柄上郡松田町の中学校を選択
足柄上郡開成町の中学校を選択
足柄下郡湯河原町の中学校を選択
愛甲郡愛川町の中学校を選択
横浜市旭区の中学校を選択
横浜市金沢区の中学校を選択
横浜市瀬谷区の中学校を選択
横浜市港南区の中学校を選択
横浜市南区の中学校を選択
横浜市保土ケ谷区の中学校を選択
横浜市戸塚区の中学校を選択
横浜市港北区の中学校を選択
横浜市泉区の中学校を選択
横浜市青葉区の中学校を選択
横浜市鶴見区の中学校を選択
横浜市緑区の中学校を選択
八王子市の中学校を選択
横浜市都筑区の中学校を選択
立川市の中学校を選択
三鷹市の中学校を選択
青梅市の中学校を選択
昭島市の中学校を選択
調布市の中学校を選択
町田市の中学校を選択
小金井市の中学校を選択
小平市の中学校を選択
日野市の中学校を選択
東村山市の中学校を選択
国分寺市の中学校を選択
国立市の中学校を選択
福生市の中学校を選択
狛江市の中学校を選択
東大和市の中学校を選択
清瀬市の中学校を選択
東久留米市の中学校を選択
武蔵村山市の中学校を選択
多摩市の中学校を選択
羽村市の中学校を選択
あきる野市の中学校を選択
新築一戸建て
中古一戸建て
マンション
土地
ME不動産神奈川
〒243-0018神奈川県厚木市中町4-9-18本厚木トーセイビルU302定休日 : 水曜日営業時間 : 09:00〜18:30
お問い合わせ
人生最大のお買いものである住宅購入には、様々なお悩みや不安がつきものですどんな些細なことでも構いませんので、まずはME不動産神奈川にお気軽にご相談ください。
〒243-0018神奈川県厚木市中町4-9-18本厚木トーセイビルU302営業時間:9:00〜18:30定休日:水曜日
トップ
種別から検索
人気エリア特集
人気の検索条件
コンテンツ一覧
会員メニュー
弊社について
© ME不動産神奈川 All rights reserved.