清水小学校(八王子市)|神奈川の新築・中古一戸建て、不動産情報ならME不動産神奈川

定休日:水曜日 営業時間 9:00〜18:30

046-294-0866

会員登録
TOPページ >
物件検索 >
不動産情報一覧

清水小学校(八王子市)の検索結果一覧

種別で絞り込む 新築一戸建て 中古一戸建て 中古マンション 土地
1件中1〜1件を表示
表示件数 並び順
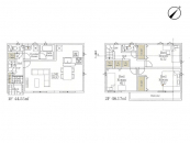
新築一戸建て

価格 3,498万円 
所在地 東京都八王子市中野町
交通 JR横浜線 八王子駅 バス23分停歩1分
間取り 4LDK
建物面積 103.06u 土地面積 130.60u
築年月 2026年4月 建物構造 一戸建て/木造
12枚  
表示件数 並び順


お客様へ

不動産情報はME不動産神奈川にお任せください!ME不動産神奈川では不動産情報を豊富にご用意しております。 新築戸建て・土地・マンションをお探しの方はぜひME不動産神奈川までお問い合わせください。信頼あるスタッフがあなたのマイホーム探しのお手伝いをさせて頂きます。

お問い合わせ

人生最大のお買いものである住宅購入には、様々なお悩みや不安がつきものです
どんな些細なことでも構いませんので、まずはME不動産神奈川にお気軽にご相談ください。

© ME不動産神奈川 All rights reserved.