鎌倉市浄明寺4丁目の分譲住宅一覧|神奈川の新築・中古一戸建て、不動産情報ならME不動産神奈川

定休日:水曜日 営業時間 9:00〜18:30

046-294-0866

会員登録
TOPページ >
物件検索 >
分譲住宅特集一覧 >
鎌倉市浄明寺4丁目の分譲住宅特集一覧
2件中1〜2件を表示
  • 1
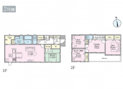
新築一戸建て
価格 6,280万円 
所在地 鎌倉市浄明寺4丁目
交通 JR横須賀線 鎌倉駅 バス9分停歩7分
建物面積 107.74m2 土地面積 260.18m2

新築一戸建て
価格 6,380万円 
所在地 鎌倉市浄明寺4丁目
交通 JR横須賀線 鎌倉駅 バス9分停歩7分
建物面積 106.40m2 土地面積 231.79m2

2件中1〜2件を表示
  • 1

お問い合わせ

人生最大のお買いものである住宅購入には、様々なお悩みや不安がつきものです
どんな些細なことでも構いませんので、まずはME不動産神奈川にお気軽にご相談ください。

© ME不動産神奈川 All rights reserved.