茅ヶ崎市南湖2丁目の分譲住宅一覧|神奈川の新築・中古一戸建て、不動産情報ならME不動産神奈川

定休日:水曜日 営業時間 9:00〜18:30

046-294-0866

会員登録
TOPページ >
物件検索 >
分譲住宅特集一覧 >
茅ヶ崎市南湖2丁目の分譲住宅特集一覧
2件中1〜2件を表示
  • 1
新築一戸建て
価格 4,280万円 
所在地 茅ヶ崎市南湖2丁目
交通 JR東海道本線 -駅 バス8分停歩4分
建物面積 82.62m2 土地面積 112.77m2

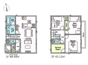
新築一戸建て
価格 4,380万円 
所在地 茅ヶ崎市南湖2丁目
交通 JR東海道本線 -駅 バス8分停歩4分
建物面積 87.48m2 土地面積 85.09m2

2件中1〜2件を表示
  • 1

お問い合わせ

人生最大のお買いものである住宅購入には、様々なお悩みや不安がつきものです
どんな些細なことでも構いませんので、まずはME不動産神奈川にお気軽にご相談ください。

© ME不動産神奈川 All rights reserved.