南足柄市和田河原 の分譲住宅一覧|神奈川の新築・中古一戸建て、不動産情報ならME不動産神奈川

定休日:水曜日 営業時間 9:00〜18:30

046-294-0866

会員登録
TOPページ >
物件検索 >
分譲住宅特集一覧 >
南足柄市和田河原 の分譲住宅特集一覧
3件中1〜3件を表示
  • 1
新築一戸建て
価格 2,180万円 
所在地 南足柄市和田河原
交通 - -駅 徒歩4分
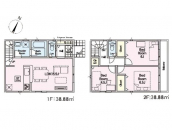
建物面積 77.76m2 土地面積 101.00m2

新築一戸建て
価格 2,480万円 
所在地 南足柄市和田河原
交通 - -駅 徒歩4分
建物面積 90.72m2 土地面積 130.91m2

新築一戸建て
価格 2,780万円 
所在地 南足柄市和田河原
交通 - -駅 徒歩4分
建物面積 104.49m2 土地面積 161.58m2

3件中1〜3件を表示
  • 1

お問い合わせ

人生最大のお買いものである住宅購入には、様々なお悩みや不安がつきものです
どんな些細なことでも構いませんので、まずはME不動産神奈川にお気軽にご相談ください。

© ME不動産神奈川 All rights reserved.