秦野市堀山下 の分譲住宅一覧|神奈川の新築・中古一戸建て、不動産情報ならME不動産神奈川

定休日:水曜日 営業時間 9:00〜18:30

046-294-0866

会員登録
TOPページ >
物件検索 >
分譲住宅特集一覧 >
秦野市堀山下 の分譲住宅特集一覧
3件中1〜3件を表示
  • 1
新築一戸建て
価格 3,480万円 
所在地 秦野市堀山下
交通 小田急小田原線 渋沢駅 バス7分停歩2分
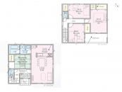
建物面積 92.34m2 土地面積 195.81m2

新築一戸建て
価格 3,580万円 
所在地 秦野市堀山下
交通 小田急小田原線 渋沢駅 バス7分停歩2分
建物面積 95.58m2 土地面積 195.66m2

新築一戸建て
価格 3,680万円 
所在地 秦野市堀山下
交通 小田急小田原線 渋沢駅 バス7分停歩2分
建物面積 98.01m2 土地面積 195.91m2

3件中1〜3件を表示
  • 1

お問い合わせ

人生最大のお買いものである住宅購入には、様々なお悩みや不安がつきものです
どんな些細なことでも構いませんので、まずはME不動産神奈川にお気軽にご相談ください。

© ME不動産神奈川 All rights reserved.