| 価格 | 4,290万円 ![]() |
||||
|---|---|---|---|---|---|
| 所在地 | 東京都東村山市久米川町2丁目
この地域周辺の物件を見る |
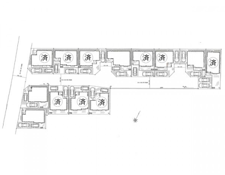
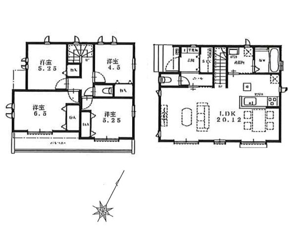
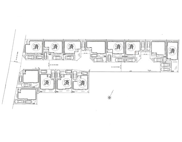
土地面積 | 110.16m² (33.32坪) | 建物面積 | 96.88u |
| 築年月 | 2026年2月築 | 間取り | 4LDK (-) | ||
| 交通 |
西武新宿線 東村山 徒歩21分
JR武蔵野線 新秋津 徒歩25分 |
||||
電話をかける(携帯・PHS可)
046-294-0866
「ホームページを見た」とお伝え下さい。
お問い合わせ番号をお伝えください
RHS-980931684
| 特徴 |
|
|---|---|
| セールスコメント |
| 採光面 | - | 構造/階数 | 木造/地上2階建 |
|---|---|---|---|
| 建ぺい率 | 50(%) | 容積率 | 100(%) |
| 駐車場 | 有 | 現況/引渡し | -/2026年2月下旬 |
| 土地権利 | 所有権 | 私道負担面積 | - |
| 接道状況 | 接道: 北 私道 道路幅: 5m 接道: 西 公道 道路幅: 6m |
用途地域 |
第一種低層住居専用地域
|
| セットバック | なし | 法令上の制限 | 第一種高度地区 準防火地域 |
| 地目 | 畑 | 地勢 | |
| 建築確認番号 | HPA-25-11099-1 | 都市計画 | 市街化区域 |
| 取引態様 | 仲介 | ||
| 情報更新日 | 2026年01月23日 | 次回更新日 | 2026年02月06日 |
| 小学校区 | 東村山市立久米川東小学校 (東京都東村山市) この学区の他の物件を見る |
中学校区 | 東村山第二中学校 (東京都東村山市) この学区の他の物件を見る |
|---|
電話をかける(携帯・PHS可)
046-294-0866
「ホームページを見た」とお伝え下さい。
お問い合わせ番号をお伝えください
RHS-980931684
| 価格 | 万円 | ||
|---|---|---|---|
| 年利率 | % |
||
| ボーナス払い | 返済年数 | ||
| 頭金 | 直接入力する | 万円 | |

毎月のご返済額 |
ボーナス(×年2回) |
物件価格4,290万円 |
![]() |
![]() |
東村山市久米川町2丁目
4190万円〜4690万円 |
電話をかける(携帯・PHS可)
046-294-0866
「ホームページを見た」とお伝え下さい。
お問い合わせ番号をお伝えください
RHS-980931684
お問い合わせ
人生最大のお買いものである住宅購入には、様々なお悩みや不安がつきものです
どんな些細なことでも構いませんので、まずはME不動産神奈川にお気軽にご相談ください。
弊社について
© ME不動産神奈川 All rights reserved.
-