| 価格 | 3,280万円値下がり ![]() |
||||
|---|---|---|---|---|---|
| 所在地 | 神奈川県座間市座間1丁目
この地域周辺の物件を見る |
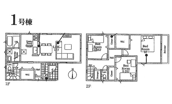
土地面積 | 95.04m² (28.75坪) | 建物面積 | 94.36u |
| 築年月 | 2026年1月築 | 間取り | 3LDK (-) | ||
| 交通 |
JR相模線 相武台下 徒歩13分
JR相模線 入谷 徒歩17分 |
||||
電話をかける(携帯・PHS可)
046-294-0866
「ホームページを見た」とお伝え下さい。
お問い合わせ番号をお伝えください
RHS-980928483
| 特徴 |
|
|---|---|
| セールスコメント |
| 採光面 | - | 構造/階数 | 木造/地上2階建 |
|---|---|---|---|
| 建ぺい率 | 60(%) | 容積率 | 150(%) |
| 駐車場 | 有 | 現況/引渡し | -/2026年1月下旬 |
| 土地権利 | 所有権 | 私道負担面積 | - |
| 接道状況 | 接道: 東 公道 道路幅: 5m | 用途地域 |
第一種中高層住居専用地域
|
| セットバック | なし | 法令上の制限 | 道路斜線制限 隣地斜線制限 |
| 地目 | 宅地 | 地勢 | |
| 建築確認番号 | 第KBI-SGM25-10-3209号 | 都市計画 | 市街化区域 |
| 取引態様 | 仲介 | ||
| 情報更新日 | 2025年12月07日 | 次回更新日 | 2025年12月21日 |
| 小学校区 | () |
中学校区 | () |
|---|
電話をかける(携帯・PHS可)
046-294-0866
「ホームページを見た」とお伝え下さい。
お問い合わせ番号をお伝えください
RHS-980928483
| 価格 | 万円 | ||
|---|---|---|---|
| 年利率 | % |
||
| ボーナス払い | 返済年数 | ||
| 頭金 | 直接入力する | 万円 | |

毎月のご返済額 |
ボーナス(×年2回) |
物件価格3,280万円 |
![]() |
![]() |
座間市座間1丁目
3280万円〜3680万円 |
電話をかける(携帯・PHS可)
046-294-0866
「ホームページを見た」とお伝え下さい。
お問い合わせ番号をお伝えください
RHS-980928483
お問い合わせ
人生最大のお買いものである住宅購入には、様々なお悩みや不安がつきものです
どんな些細なことでも構いませんので、まずはME不動産神奈川にお気軽にご相談ください。
弊社について
© ME不動産神奈川 All rights reserved.
-