| 価格 | 6,498万円 ![]() |
||||
|---|---|---|---|---|---|
| 所在地 | 神奈川県川崎市多摩区南生田7丁目
この地域周辺の物件を見る |
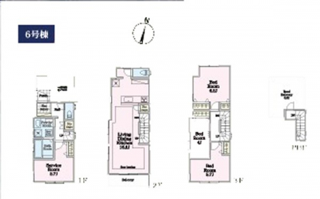
土地面積 | 143.52m² (43.41坪) | 建物面積 | 108.63u |
| 築年月 | 2025年12月築 | 間取り | 4LDK (-) | ||
| 交通 |
小田急小田原線 生田 徒歩15分
小田急小田原線 読売ランド前 徒歩27分 |
||||
電話をかける(携帯・PHS可)
046-294-0866
「ホームページを見た」とお伝え下さい。
お問い合わせ番号をお伝えください
RHS-980928400
| 特徴 |
|
|---|---|
| セールスコメント | 私道持分:無 その他持分:無 |
| 採光面 | - | 構造/階数 | 木造/地上2階建 |
|---|---|---|---|
| 建ぺい率 | 50(%) | 容積率 | 100(%) |
| 駐車場 | 有 | 現況/引渡し | -/2025年12月下旬 |
| 土地権利 | 所有権 | 私道負担面積 | - |
| 接道状況 | 接道: 西 私道 道路幅: 4m | 用途地域 |
第一種低層住居専用地域
|
| セットバック | なし | 法令上の制限 | 法22条区域 第一種高度地区 宅地造成等工事等規制区域 日陰規制3h-2h1.5m 外壁後退1m |
| 地目 | 宅地 | 地勢 | |
| 建築確認番号 | 第25UDI1W建02686号 | 都市計画 | 市街化区域 |
| 取引態様 | 仲介 | ||
| 情報更新日 | 2025年11月17日 | 次回更新日 | 2025年12月01日 |
| 小学校区 | 川崎市立南生田小学校 (神奈川県川崎市多摩区) この学区の他の物件を見る |
中学校区 | 南生田中学校 (神奈川県川崎市多摩区) この学区の他の物件を見る |
|---|
電話をかける(携帯・PHS可)
046-294-0866
「ホームページを見た」とお伝え下さい。
お問い合わせ番号をお伝えください
RHS-980928400
| 価格 | 万円 | ||
|---|---|---|---|
| 年利率 | % |
||
| ボーナス払い | 返済年数 | ||
| 頭金 | 直接入力する | 万円 | |

毎月のご返済額 |
ボーナス(×年2回) |
物件価格6,498万円 |
電話をかける(携帯・PHS可)
046-294-0866
「ホームページを見た」とお伝え下さい。
お問い合わせ番号をお伝えください
RHS-980928400
お問い合わせ
人生最大のお買いものである住宅購入には、様々なお悩みや不安がつきものです
どんな些細なことでも構いませんので、まずはME不動産神奈川にお気軽にご相談ください。
弊社について
© ME不動産神奈川 All rights reserved.
-