定休日:水曜日 営業時間 9:00〜18:30
046-294-0866
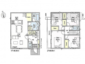
新築一戸建て|小金井市本町3丁目分譲住宅
新築一戸建て
中古一戸建て
マンション
土地
ME不動産神奈川
〒243-0018神奈川県厚木市中町4-9-18本厚木トーセイビルU302定休日 : 水曜日営業時間 : 09:00〜18:30
お問い合わせ
人生最大のお買いものである住宅購入には、様々なお悩みや不安がつきものですどんな些細なことでも構いませんので、まずはME不動産神奈川にお気軽にご相談ください。
〒243-0018神奈川県厚木市中町4-9-18本厚木トーセイビルU302営業時間:9:00〜18:30定休日:水曜日
トップ
種別から検索
人気エリア特集
人気の検索条件
コンテンツ一覧
会員メニュー
弊社について
© ME不動産神奈川 All rights reserved.